3RA2434-8XF32-1AL2
19 621.52 ₴
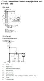
SIEMENS SIRIUS контакторна збірка для пуску асинхронного двигуна по схемі зірка-трикутник, 22.0/30.0 кВт потужність для 400В АС3, наруга керування контакторів: змінна 230В, номінальний струм 50.0/65.0 A (AC3), підключення: гвинтові клеми, типорозмір контакторів у збірці – S2-S2-S0, електричне та механічне взаємоблокування, інтегровано 3 NO+3 NC додаткових контакти
| Потужність (400В) | 22.0/30.0 кВт |
|---|---|
| Brand | SIEMENS |
| Номінальний струм (400В) | 50.0/65.0 А |
| Типорозмір | S2-S2-S0 |
| Напруга живлення катушки керування | змінна 230В |
| Клеми підключення | гвинтові клеми |
| Додаткові можливості | інтегровано 3 NO+3 NC додаткових контакти |
| Комунікаційні можливості | відсутня |
Доступно за замовленням
Функціональні модулі для пуску по схемі зірка-трикутник мають наступні особливості:
● Усі модулі з широким діапазоном напруги керування
● Вбудований варистор (обмежувач перенапруги)
● Один комплект модулів для гвинтових контакторних збірок та систем з підпружиненим підключенням
● Один комплект модулів для контакторів типорозміру S00, S0, S2 та S3
● Широкий діапазон напруги (від 24 до 240 В змінного / постійного струму) та
● 3 діапазони часу на вибір (10 с, 30 с, 60 с)
● Регулювання часу від 5 до 100% по шкалі діапазону часу (відповідає 0,5 с … 60 с)
● Затримка перемикання встановлена на нерегульоване значення ≥ 50 мс
● Індикація положення перемикача контактора у вигляді механічного індикатор положення
● Керування лише через A1 / A2 на лінійному контакторі
● не потребують додаткових силових підєднань


Тиск
Температура
Витрата
Рівень
Прилади
Вага
Аварійні вимикачі SIEMENS
Автоматичні вимикачі в литому корпусі SIEMENS SENTRON 3VA
Силові автоматичні вимикачі в литому корпусі Siemens Sentron 3VA1
Силові автоматичні вимикачі в литому корпусі Siemens Sentron 3VA2
Автомати захисту двигуна 3RV2 SIEMENS SIRIUS
Автомати захисту двигуна SIEMENS SIRIUS 3RV20
Автомати захисту двигуна SIEMENS SIRIUS 3RV21
Автомати захисту двигуна SIEMENS SIRIUS 3RV23
Автомати захисту двигуна SIEMENS SIRIUS 3RV24
Вимикачі і роз’єднувачі навантаження
Гібридні пускачі SIEMENS SIRIUS 3RM1
Контактори SIEMENS SIRIUS 3RT
Контакторні збірки SIRIUS 3RA24 за схемою зірка-трикутник
Модульні автомати SIEMENS 5SL / 5SY / 5SP
Модульні автоматичні вимикачі Сіменс 5SL для стандартних застосувань у житловому та нежитловому секторі
Модульні автоматичні вимикачі Сіменс 5SY для промислових застосувань з підвищеною вимикаючою здатністю при коротких замиканнях
Модульні автоматичні вимикачі Сіменс 5SP для значних номінальних струмів
Пристрої захисного відключення та диференційні автомати захисту SIEMENS SENTRON
Диференційні автомати захисту SIEMENS SENTRON 5SU
Пристрої захисного відключення (ПЗВ) SIEMENS SENTRON 5SV / 5SM
Пристрої захисту
Пристрої плавного пуску SIEMENS SIRIUS
Пристрої плавного пуску SIRIUS 3RW30
Пристрої плавного пуску SIRIUS 3RW40
Пристрої плавного пуску SIRIUS 3RW44
Пристрої плавного пуску SIRIUS 3RW50
Пристрої плавного пуску SIRIUS 3RW52
Пристрої плавного пуску SIRIUS 3RW55
Пристрої управління та індикації SIEMENS
Реверсивні контакторні збірки SIRIUS 3RA23
Реле безпеки SIRIUS
Реле контролю SIRIUS
Трансформатори SIEMENS SITAS
Трансформатори струму SIEMENS
Функціональні, комутуючі реле та перетворювачі SIRIUS
Частотні перетворювачі SIEMENS SINAMICS
Перетворювачі частоти SINAMICS G120
Перетворювачі частоти SINAMICS G120C
Перетворювачі частоти SINAMICS G120P
Перетворювачі частоти SINAMICS G120X
Перетворювачі частоти SINAMICS V20
Сервосистема SINAMICS V90 та SIMOTICS S-1FL6
Серво-перетворювачі SINAMICS V90
Серводвигуни SIMOTICS S-1FL6
Приводи постійного струму SINAMICS DCM DC
Електродвигуни Сіменс Сімотікс
Низьковольтні двигуни SIEMENS загального застосування
3000 об/хв – асинхронні електродвигуни Сіменс Сімотікс GP/SD
1500 об/хв – асинхронні електродвигуни Сіменс Сімотікс GP/SD
1000 об/хв – асинхронні електродвигуни Сіменс Сімотікс GP/SD
750 об/хв – асинхронні електродвигуни Сіменс Сімотікс GP/SD
Блоки живлення SITOP
Контролери SIMATIC S7
Карти пам’яті SIMATIC S7
Контролери SIMATIC серії S7-1200
Контролери SIMATIC серії S7-1500
Контролери SIMATIC серії S7-300
Контролери SIMATIC серії S7-400
Мережеві компоненти SIEMENS
Модулі LOGO!
Панелі SIMATIC HMI та комплектуючі
Програмне забезпечення SIMATIC
Промисловий Ethernet SCALANCE
Промислові комп’ютери
Промислові комунікації SIMATIC NET
Система автоматизації SIMATIC TDC
Системи SIMATIC
Станції SIMATIC ET 200 та комплектуючі
Фідери та пускачі двигунів SIEMENS